CÓDIGO 7634 Terreno à venda / Sétimo Céu / Porto Alegre

Vídeo do imóvel

Terreno Sétimo Céu
Rua Coronel Gomes de Carvalho Rua Coronel Gomes de Carvalho
  • de R$ 2.000.000
  • R$ 1.900.000

Terreno à venda, no bairro Sétimo Céu em Porto Alegre

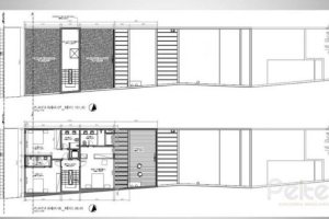
Peiter vende terreno no Sétimo Céu com vista deslumbrante para o rio e cidade, composto por 03 lotes de 9 metros de frente casa por 49,75 metros de profundidade em um total de aproximadamente 1.343m² com leve declive e um belíssimo projeto aprovado para 06 casas conforme projeto anexo nas imagens.
Projeto tipo casa 01, térrea com aproximadamente 400m² de área construída, sendo 03 suítes com 98m², área social com 98m² , terraço com 70m², área de serviço com 36m2 e garagem com 97m².
Projeto tipo casa 02, com aproximadamente 500m² de área construída, sendo 112m² de área íntima, 03 suítes, área social com 75m², terraço com 111m², área de serviço com 36m² e garagem com 97m².

Fale conosco ENVIE UMA MENSAGEM


Onde fica?

Bairro Sétimo Céu Endereço Rua Coronel Gomes de Carvalho, Porto Alegre

WhatsApp